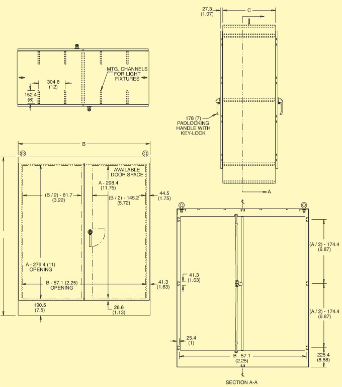
Application
The SCE-FSDAD Series indoor/outdoor electrical enclosures are designed to house electrical and electronic controls, instruments and equipment in areas which may be regularly hosed down or are in very wet conditions. These electrical control panels provide protection from dust, dirt, oil and water. This outdoor electrical control panel is the solution for waterproof and weatherproof applications. The enclosures are extra deep with front and rear access for applications requiring more interior space and have provisions for optional surface mounting or rack mounting of almost any type of equipment.
by Saginaw Control Finish
White powder coating inside and ANSI-61
recoatable gray finish outside over
phosphatized surfaces. Optional panels are powder
coated white.
Industry Standard IS3
NEMA Type 3R, 12 & Type 13
UL Listed Type 3R, 12
CSA TYpe 3R, 12
IEC 60529 IP 55
† 所有金額以RMB顯示 訂購示例: (1) SCE - 724824FSDAD Type 12 Free - Standing Two - Door Dual - Access Carbon Steel Enclosure, ¥63,412.20